Einmal gesehen und gleich verliebt - das gibt es manchmal. Uns ging es jedenfalls so, und daher präsentieren wir Ihnen nicht ganz ohne Stolz unser neues Angebot am Glienicker See in Kladow:
Ein Familienhaus der feinen Extras, mit allem, was Sie sich für ein idyllisches und gemütliches Zuhause wünschen. Wenn nicht hier, wo sonst könnte man glücklich werden.
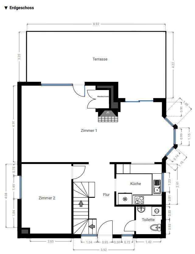
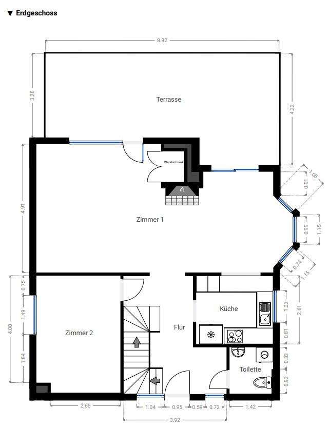
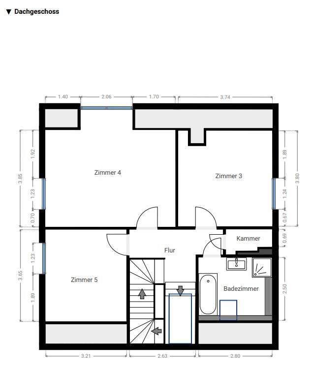
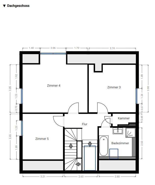
5 Zimmer auf über 150 m² Wohnfläche verteilt, plus ca. 14 m² großem Kellerersatzraum/Hauswirtschaftsraum und ein Spitzboden warten auf Sie. Ein Doppelcarport mit elektrischem Rolltor, eine Wallbox, eine große Terrasse, ein kleiner Holzrahmenpool und eine Solaranlage sind nur ein paar der tollen Highlights dieses Immobilienangebotes in idyllischer Lage am See.
Ein massiv gebautes Haus der gehobenen Klasse - und in vielerlei Hinsicht gut geeignet für Familien oder Paare, die eine Immobilie ganz Kladow-typisch ruhig, naturnah und dennoch auch ein wenig städtisch suchen.
Fordern Sie unser Exposé an und lassen Sie sich anschließend vor Ort überzeugen: Das ist IHR neues Zuhause.




























