Verfügbar

INVEST – kleine Wohnung in Moabit

Eckdaten

Kaufpreis 148.000 €
Zimmer 1
Wohnfläche ca. 38,36 m²

Objektbeschreibung

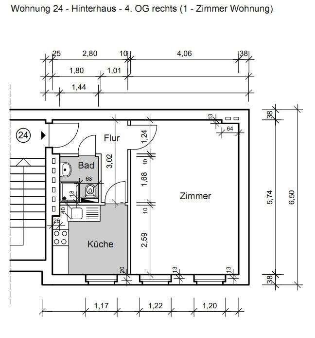
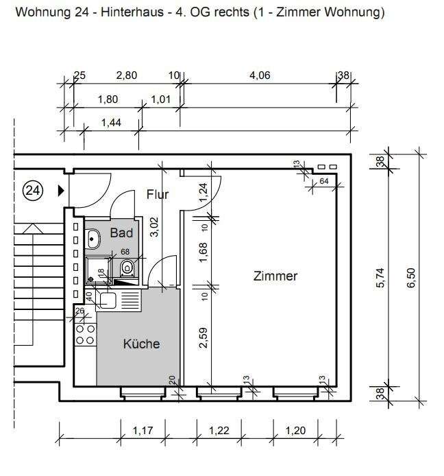
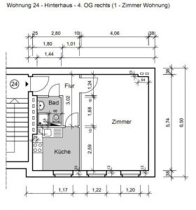
Diese Kapitalanlage befindet sich im 4. Obergeschoss des ruhigen Gartenhauses einer gepflegten Wohnanlage aus dem Jahr 1908 mit insgesamt 24 Einheiten.
Die Wohnung verfügt über eine Wohnfläche von ca. 38 m² verteilt auf Schlaf- / Wohnbereich, Duschbad, Küche sowie einem kleinen Flur.

Objektdaten

Standort
10551 Berlin
Etage
4 von 5
Wohnfläche
ca. 38,36 m²
Anzahl Zimmer
1
Kaufpreis
148.000 €
Kaltmiete
300,19 €
Gesamtmiete
470,19 €
Nebenkosten
45 €
Heizkosten
125 €
Hausgeld
314,38 €
Provisionspflichtig
Ja
Käuferprovision
3,57 % inkl. 19 % MwSt.
Provisionshinweis
Der Immobilienmakler ist im beidseitigen Interesse für den Verkäufer und den Kaufinteressenten tätig (Doppeltätigkeit). Die Käuferprovision beträgt 3,57 % inkl. 19 % MwSt. und ist verdient und fällig mit Beurkundung des notariellen Kaufvertrages. Der Immobilienmakler hat ebenfalls einen provisionspflichtigen Maklervertrag mit dem Verkäufer in gleichlautender Höhe abgeschlossen.
Vermietet
Ja
Objekttyp
Wohnung
Nutzungstyp
Wohnen
Verfügbarkeit
Verfügbar
Vermarktungstyp
Kauf
Baujahr
1908
Zustand
Gepflegt

Ausstattung

Der Wohn- und Schlafbereich ist mit einem Dielenboden ausgestattet.
Das Badezimmer wurde gefliest und verfügt über eine Dusche sowie einen Heizkörper.
In der Küche wurde ein pflegeleichter Vinylboden verlegt; sie ist mit einfachen Einbauten ausgestattet. Ein Durchlauferhitzer, der etwa im Jahr 2016 erneuert wurde, sorgt für die Warmwasserversorgung.
Zur weiteren Ausstattung der Wohnung zählen Fenster mit Kunststoffrahmen.
Ein der Wohnung zugewiesener Kellerverschlag bietet zusätzlichen Stauraum.

Dusche
Ja
Einbauküche
Ja
Fliesen
Ja
Dielen
Ja

Energieausweis

Baujahr1908
Energie­ausweistypVerbrauchsausweis
Erstellt am14.03.2018
Gültig bis14.03.2028
Endenergieverbrauch121,10 kWh/(m²·a)
Mit WarmwasserJa
PrimärenergieträgerFernwärme
Energieeffizienz KlasseD
HeizungsartFernwärme
A+
A
B
C
D
E
F
G
H

Ähnliche Immobilien

Nach oben scrollen